Projekt 030
– Fuldmuret enfamiliehus

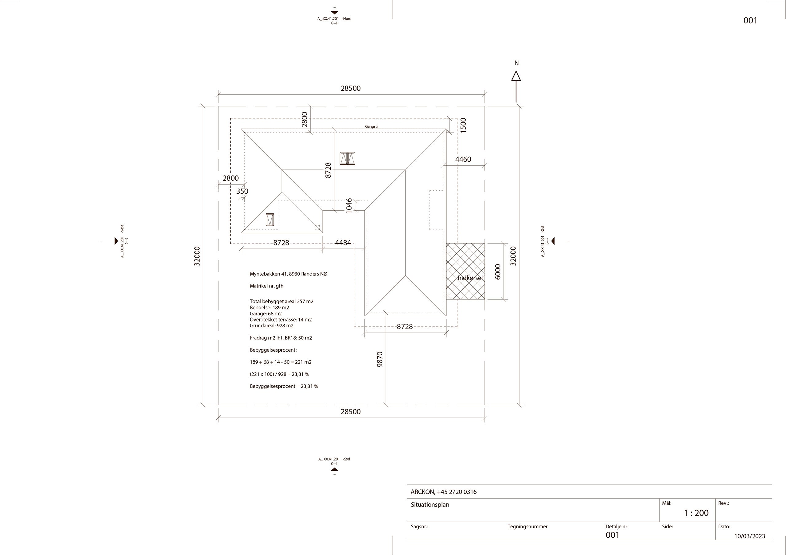
Fuldmuret enfamiliehus med indbygget garage.

Huset er designet ud fra specifikke krav og i tæt samarbejde med bygherre, da huset skal være praktisk, samt bl.a. indeholde børneafdeling, forældreafdeling, indbygget garage, stort køkken med viktualierum og hyggekroge til familien.

Her kan du downloade eksempler fra tidligere projekter

030 - Facade Nord - Syd
030 - Facade Øst - Vest
030 - Plantegning
030 - Situationsplan